一、产品名称:立柱式气动悬臂吊
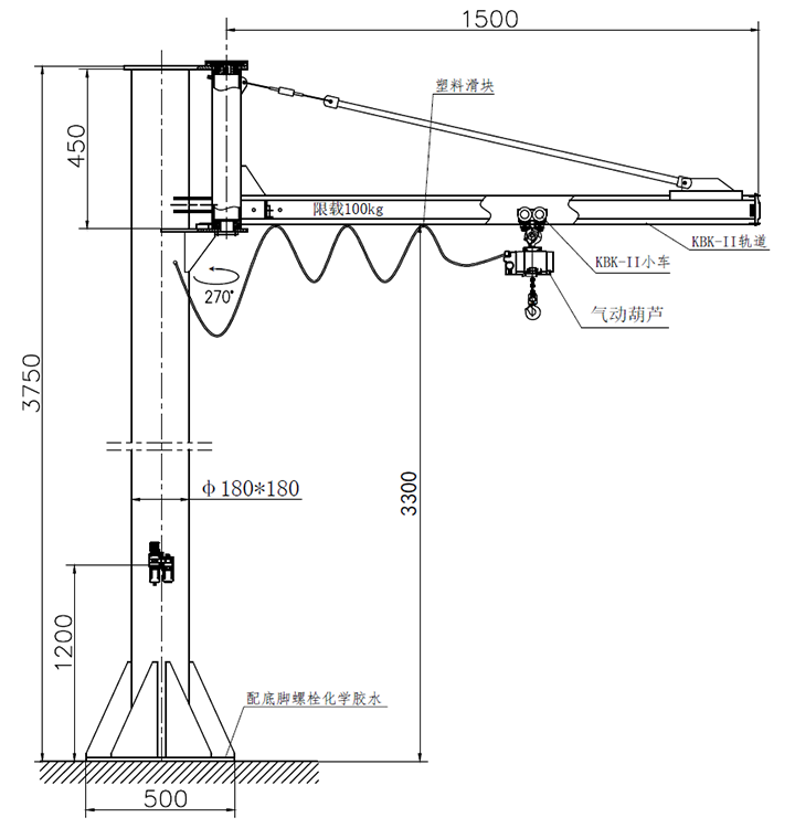
二、产品概述:本机由立柱回转旋臂与环链气动葫芦等组成。立柱下端固定于混泥土基础上,旋臂可根据用户需求进行回转,回转部为手动回转。环链气动葫芦安装在旋臂KBK轨道小车上,可手动牵引,广泛利用于车间的生产、装配线以及仓库、码头等需要起吊重物的场所。
三、型号说明
四、技术参数
五、外形尺寸
业务电话:+86-0513-68553356 手机:18851386947
工厂电话:+86-0513-84852008
办公室地址:江苏省南通市崇川区中南百货写字楼北区2309室
办事处地址:江苏省南通市如东县洋口镇新林工业园
邮箱:sales@rdhxmfg.com